#Traumhaus

Modernes, hoch wärmegedämmtes Passivhaus im klassischen Stil mit Kellergeschoss.

Bereits 2016 haben wir mit der Firma Hägele unser Traumhaus geplant. Herr Hägele hat sich unsere Vorstellungen und Wünsche aufmerksam angehört und in die Planung umgesetzt.

Im Angebot waren viele Kosten enthalten, sodass der Hauspreis sehr genau berechenbar war und wir damit eine Planungssicherheit hatten.

Im März 2017 ging es dann mit dem Hausbau los. Die Mitarbeiter der Firma Hägele waren sehr freundlich und immer für Fragen offen. Absprachen wurden eingehalten. Auch mit vorhandenen Fehlern/Problemen wurde offen und direkt umgegangen. Eine gemeinsame Lösung zur Zufriedenheit aller wurde immer gefunden.

Seit 2018 wohnen wir in unserem Passivhaus. Durch das warme und heimelige Raumklima fühlen wir uns sehr wohl, weshalb wir wieder so bauen würden!"

Stefanie und Fabian Blatter aus Binzwangen.

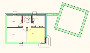
Kellergeschoss

Der Keller ist aufgeteilt in zwei Kellerräume und den Haustechnikraum mit rund 44 m² Nutzfläche. Der Flur und das Büro haben eine Wohnfläche von ca. 21 m².

Erdgeschoss

Im Erdgeschoss mit ca. 66 m² Wohnfläche befindet sich direkt neben dem Eingangsbereich die Garderobe und ein Gäste-WC. Eine große Türe mit Festverglasung führt in den Wohn- und Essbereich mit offener Küche.

Obergeschoss

Durch die elegante Treppe erreicht man das Obergeschoss mit rund 65 m² Wohnfläche. Hier befinden sich zwei Kinderzimmer, ein Schlafzimmer mit Durchgang zum Ankleidezimmer und das Badezimmer mit zwei Waschbecken, einer Badewanne, WC und begehbarer Dusche. Durch das Ankleidezimmer ist das Badezimmer ebenfalls begehbar.

Garage

Die Doppelgarage mit ca. 49 m² Nutzfläche bietet genug Platz für zwei PKW-Stellplätze, Fahrräder und den Müll. Durch die praktische Eingangsüberdachung zwischen Haus und Garage gelangt man trockenen Fußes ins Haus.

Unsere Premium-Partner

Lernen Sie uns persönlich kennen

1
2
3

Datenschutzhinweis

Diese Webseite nutzt externe Komponenten, wie z.B. Karten, Videos oder Analysewerkzeuge, welche alle dazu genutzt werden können, Daten über Ihr Verhalten zu sammeln. Dabei werden von den externen Komponenten ggf. auch Cookies gesetzt. Die Einwilligung zur Nutzung der Komponenten können Sie jederzeit widerrufen. Eine Übersicht der externen Komponenten und weitere Informationen dazu erhalten Sie in unseren Datenschutzinformationen.

Notwendige Cookies werden immer geladen