#Passivhaus-Besichtigung

Ein modernes, hoch wärmegedämmtes Passivhaus im Stadtvillenstil mit Kellergeschoss und dem „Plus“ einer Photovoltaikanlage zur Eigenstromnutzung. Mit einem PassivhausPlus brauchen Sie keine Angst vor der Energiepreissteigerung haben. Ein Passivhaus steht für geringen Energieverbrauch. Sie wollen wissen, wie das funktioniert, kommen Sie vorbei und informieren sich!

Besichtigungstermin:

Sonntag, 01. Oktober 2023 von 14:00 bis 16:00 Uhr

Bautenstand:

Im Innenausbau (kurz vor Einzug der Baufamilie)

Anschrift:

88524 Dietershausen, Zur Schmiede 15

Die Zufahrt ist über die Abt-Edmund-Straße ausgeschildert!

Damit Sie den Besichtigungstermin nicht verpassen, senden wir Ihnen gerne eine persönliche Einladung zu!

Grundriss
Grundriss

Kellergeschoss

Das Kellergeschoss bietet einen Flur und Büro mit ca. 35 m² Wohnfläche und ca. 34 m² Nutzfläche, aufgeteilt in Haustechnikraum und Keller.

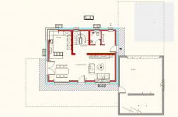
Erdgeschoss

Im Erdgeschoss mit ca. 68 m² Wohnfläche befindet sich eine Diele mit Garderobe, ein kleines WC mit Dusche. Der lichtdurchflutete Wohn- und Essbereich mit offener Küche ist das Highlight im Erdgeschoss. Die großen Terrassentüren sorgen für tollen Ausblick in den Garten.

Garage

Die Doppelgarage wird in Bauherreneigenleistung errichtet.

Grundriss
Grundriss
Grundriss
Grundriss

Obergeschoss

Durch die elegante Stahl-Holztreppe gelangt man ins Obergeschoss mit rund 66 m² Wohnfläche. Hier befindet sich die Schlafoase, zwei Kinderzimmer und das Badezimmer mit einem Waschbecken, Badewanne, WC, Pissoir und eine begehbare Dusche 

Haustechnik

Die hocheffiziente Lüftungsanlage mit Wärmerückgewinnung steht für anhaltend frische Luft im Haus, ohne dass manuell über die Fenster gelüftet werden muss. Ein vorgeschalteter Lufterdwärmetauscher sorgt mit Wärme aus dem Erdreich des Arbeitsraumes um den Keller dafür, dass die frische Außenluft im Winter vorerwärmt wird. Somit friert der Wärmetauscher des zentralen Lüftungsgerätes auch an kalten Wintertagen nicht ein. Im Sommer wiederum sorgt der Lufterdwärmetauscher dafür, dass die Warme Sommerluft vorgekühlt wird. In Verbindung mit dem automatischen Sommer Bypass, welcher die Wärmerückgewinnung im Sommer abschaltet, wirkt dieser der Sommerhitze entgegen und sorgt für angenehme Sommerfrische im Haus.

Für die geringe, nur in den Kern Wintermonaten Dezember, Januar, Februar noch benötigte Heizwärme sorgt in diesem Passivhaus eine hocheffiziente Luft/Wasser Wärmepumpe, welche idealerweise die elektrische Antriebsenergie direkt von der auf dem Dach befindlichen Photovoltaikanlage erhält. Eine smarte Steuerung sorgt dafür, dass der erzeugte Strom zunächst im Haus verbraucht wird. Der Batteriespeicher puffert zusätzliche, elektrische Energie für einen Tagesbedarf. Dieses "Hauskraftwerk" vom führenden deutschen Hersteller E3DC, kann jederzeit erweitert und um eine PKW-Ladestation in der Garage ergänzt werden.

Förderung / Amortisation

Das gesamte Haustechnik Konzept wird mit einem zinsgünstigen Darlehen von der KfW gefördert. So kommen Julia und Michael Walz als Bauherren in den Genuss staatlicher Förderungen. Die Mehrkosten bei der Investition für dieses Passivhaus samt zusätzlichem Kapitaldienst amortisieren sich in weniger als 10 Jahren.

Spatenstich

Spatenstich am 14. Oktober 2022
Spatenstich am 14. Oktober 2022
Richtfest am 01. April 2023
Richtfest am 01. April 2023

Unsere Premium-Partner

Lernen Sie uns persönlich kennen

1
2
3

Datenschutzhinweis

Diese Webseite nutzt externe Komponenten, wie z.B. Karten, Videos oder Analysewerkzeuge, welche alle dazu genutzt werden können, Daten über Ihr Verhalten zu sammeln. Dabei werden von den externen Komponenten ggf. auch Cookies gesetzt. Die Einwilligung zur Nutzung der Komponenten können Sie jederzeit widerrufen. Eine Übersicht der externen Komponenten und weitere Informationen dazu erhalten Sie in unseren Datenschutzinformationen.

Notwendige Cookies werden immer geladen