Sonntag, 14. Januar 2024 von 14:00 bis 16:00 Uhr
Im Innenausbau (kurz vor Einzug der Baufamilie)
88356 Ostrach, Kardinal-Lehmann-Straße 26
Die Zufahrt ist über die Ludwig-Jahn-Straße und die Friedhofstraße ausgeschildert!
Damit Sie den Besichtigungstermin nicht verpassen, senden wir Ihnen gerne eine persönliche Einladung zu!
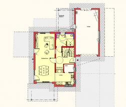
Im Erdgeschoss mit ca. 77 m² Wohnfläche befindet sich in der Diele, eine Nische für eine Garderobe. Im oberen Teil des Hauses liegt das WC mit begehbarer Dusche und Waschbecken. Durch die Terrassentüre im WC, hat man direkten Zugang zur überdachten Terrasse zwei. Der Wohn- und Essbereich mit offener Küche und separater Speis sind ebenfalls im Erdgeschoss untergebracht. Das gesamte Erdgeschoß ist schwellenlos und barrierefrei.
Durch die ans Haus angebaute Garage bietet die überstehende Garagendecke den Komfort trockenen Fußes zum Hauseingang zu gelangen. Mit ca. 43 m² Nutzfläche ist genug Platz für PKW, Gartengeräte, Fahrräder und den Müll.


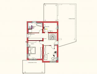
Durch die elegante Stahl-Holztreppe kommt man ins Obergeschoss mit rund 64m² Wohnfläche. Hier befindet sich die Galerie mit einem Abstellraum, das Schlafzimmer, ein Büro, der Haustechnikraum, das Badezimmer mit Badewanne, Waschbecken, begehbarer Dusche und WC. Für eine barrierefreie Nutzung des Obergeschoßes ist in der Diele ein Aufzug eingeplant, welcher bei Bedarf später eingebaut werden kann.
Die hocheffiziente Lüftungsanlage mit Wärmerückgewinnung steht für anhaltend frische Luft im Haus, ohne dass manuell über die Fenster gelüftet werden muss. Ein vorgeschalteter Sole-Wärmetauscher sorgt mit Wärme aus dem Erdreich unter der Bodenplatte dafür, dass die frische Außenluft im Winter vorerwärmt wird. Somit friert der Wärmetauscher des zentralen Lüftungsgerätes auch an kalten Wintertagen nicht ein. Im Sommer wiederum sorgt der Erdwärmetauscher dafür, dass die Warme Sommerluft vorgekühlt wird. In Verbindung mit dem automatischen Sommer Bypass, welcher die Wärmerückgewinnung im Sommer abschaltet, wirkt dieser der Sommerhitze entgegen und sorgt für angenehme Sommerfrische im Haus.
Für die Heizwärme sorgt in diesem Effizienzhaus eine Luft/Wasser Wärmepumpe, welche auf dem Garagendach installiert ist.