Sonntag, 26. Februar 2023 von 14:00 bis 16:00 Uhr
Im Innenausbau (kurz vor Einzug der Baufamilie)
88400 Rindenmoos, Am Eschbach 8
Die Zufahrt ist ausgeschildert!
Damit Sie den Besichtigungstermin nicht verpassen senden wir Ihnen gerne eine persönliche Einladung zu!

Das Kellergeschoss bietet ca. 69 m² Nutzfläche, aufgeteilt auf drei große Räume und den Flur mit ca. 8 m² Wohnfläche. Die Räume wurden in Kellerraum für viel Stauraum, einen Hobbyraum und den Haustechnikraum aufgeteilt.
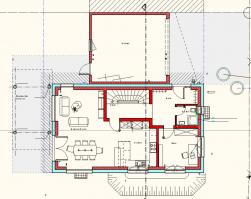
Im Erdgeschoss mit ca. 76 m² Wohnfläche befindet sich eine Diele mit Garderobe direkt am Eingangsbereich, ein kleines WC mit Dusche. Daneben liegt ein Büroraum, der Rückzugsort um ungestört zu Arbeiten. Der Diele entlang kommt man durch eine Glastüre in den lichtdurchfluteten Wohn- und Essbereich mit offener Küche. Die großen Terrassentüren sorgen für tollen Ausblick in den Garten.
Durch die ans Haus angebaute Garage bietet die überstehende Garagendecke den Komfort trockenen Fußes zum Hauseingang zu gelangen. Mit rund 52 m² Nutzfläche bietet sie zusätzlich zu zwei PKW-Stellplätzen genug Platz für Gartengeräte, Fahrräder und den Müll. Über eine Garagentüre kann die überdachte Terrasse direkt erreicht werden.


Durch die elegante Stahl-Holztreppe gelangt man ins Obergeschoss mit ca. 72 m² Wohnfläche. Hier befindet sich die Schlafoase, zwei Kinderzimmer, ein Raum zum Wäsche trocknen und das Badezimmer mit begehbarer Dusche, einem WC, Pissoir (Urinal) und zwei Waschbecken.
Die hocheffiziente Lüftungsanlage mit Wärmerückgewinnung steht für anhaltend frische Luft im Haus ohne, dass manuell über die Fenster gelüftet werden muss. Ein vorgeschalteter Lufterdwärmetauscher sorgt mit Wärme aus dem Erdreich des Arbeitsraumes um den Keller dafür, dass die frische Außenluft im Winter vor erwärmt wird. Somit friert der Wärmetauscher des zentralen Lüftungsgerätes auch an kalten Wintertagen nicht ein. Im Sommer wiederum sorgt der Lufterdwärmetauscher dafür, dass die Warme Sommerluft vorgekühlt wird. In Verbindung mit dem automatischen Sommer Bypass, welcher die Wärmerückgewinnung im Sommer abschaltet, wirkt dieser der Sommerhitze entgegen und sorgt für angenehme Sommerfrische im Haus.
Für die geringe, nur in den Kernwintermonaten Dezember, Januar, Februar noch benötigte Heizwärme sorgt in diesem Passivhaus eine hocheffiziente Erdwärmepumpe. Diese entzieht im Garten, über einen dort verlegten Grabenkollektor der Erde nahezu endlos zur Verfügung stehende Wärme, um das Brauchwarmwasser bereit zu stellen, und den Restheizwärmebedarf in den Wintermonaten zu decken.
Das gesamte Haustechnik Konzept wird vom BAFA mit einem direkten Zuschuss gefördert. In Verbindung mit einem zinsgünstigen Darlehen von der KfW und dem damit verbundenen erhöhten Tilgungszuschuss kommen Anna Woziwodzka und Adam Kawinski als Bauherren in den Genuss staatlicher Förderungen. Somit amortisieren sich die Mehrkosten für dieses Passivhaus samt zusätzlichem Kapitaldienst für die höheren Baukosten in weniger als 10 Jahre.