In Stichworten gesagt: „Eine sehr ausführliche Beratung, bei der alle Themen rund um den Bau beleuchtet wurden (inkl. realistischer Schätzung aller Nebenkosten). Eine individuelle Planung, bei der alle unsere Wünsche berücksichtigt wurden. Eine umfassende Betreuung während des gesamten Prozesses rund um die Entstehung unseres Traumhauses. Ein handwerklich hervorragend gebautes Haus, bei dem auch der begleitende Sachverständige keine Mängel finden konnte. Ein energiesparendes Haus, das uns sicher noch sehr lange Freude bereiten wird! Wir können das Bauunternehmen Hägele uneingeschränkt weiterempfehlen und würden jederzeit wieder mit ihnen bauen!“
Anna Weber und Stefan Stahl aus Ostrach.

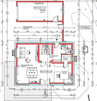
Im Erdgeschoss mit rund 66 m² Wohnfläche befindet sich neben dem Hauseingang ein kleines Gäste-Bad mit einer Dusche, WC und einem Waschbecken. Eine eingebaute Nische bietet Platz für eine Garderobe. Eine zweiflüglige Türe lädt in den Wohn- und Essbereich ein, große Terrassentüren und eine öffnende Eckverglasung sorgen für helle Räume im Erdgeschoss und einen nahtlosen Übergang auf die Terrasse und den Garten. Eine modern offene gestaltete Küche mit integrierter Speisekammer runden das gelungene Konzept ab.
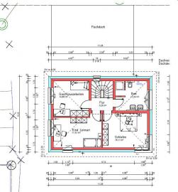
Das Obergeschoss mit rund 65 m² Wohnfläche ist aufgeteilt in ein
Schlafzimmer, ein Gästezimmer, das gleichzeitig als Hausarbeitsraum
genutzt wird, ein Kinderzimmer und ein großes Bad mit Dusche, WC und
zwei Waschbecken.


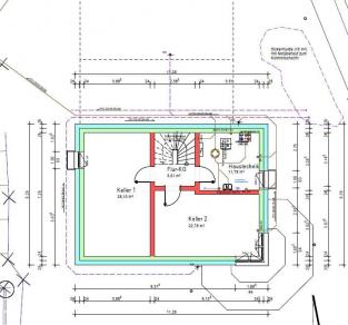
Im Kellergeschoss mit rund 66 m² Nutzfläche befinden sich zwei Kellerräume und der Haustechnikraum. Im Haustechnikraum befindet sich die hocheffiziente Lüftungsanlage mit Wärmerückgewinnung. Ein Luft- Erdwärmetauscher sorgt an heißen Sommertagen für angenehm frische Luft und an kalten Wintertagen für die Vorerwärmung der Zuluft. Eine Luft-/ Wasserwärmepumpe ist für die Restheizlast und warmes Wasser zuständig.