#Perfekte Planung

Modernes, hoch wärmegedämmtes Passivhaus im Stadtvillenstil ohne Kellergeschoss.

„Ich fühlte mich von Anfang an bei euch aufgehoben. Der Kontakt und die Planung waren bis auf ein paar Ausnahmen (Stellenwechsel) sehr gut. Ich würde jeder Zeit wieder mit euch bauen: Planung, Organisation, Handwerker, Baustelle, alles lief Hand in Hand und alles, was versprochen wurde, wurde auch eingehalten. Jetzt bin ich/wir sehr zufrieden mit unserem Passivhaus. Dank der perfekten Planung und Ausrichtung unseres Hauses, benötigen wir bei Sonnenschein keine Heizung!"

Bernd Wiedemann aus Riedlingen.

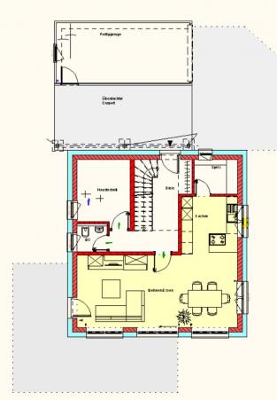
Erdgeschoss

Im Erdgeschoss mit ca. 62 m² Wohnfläche befindet sich im Eingangsbereich eine kleine Nische für die Garderobe. Im linken Teil des Hauses liegt der Haustechnikraum mit einer Nutzfläche von rund 10 m²,  gleich daneben ist das Gäste-WC untergebracht. Im südlichen und rechten Teil des Hauses befindet sich der Wohn- und Essbereich mit offener Küche und separater Speis.

Obergeschoss

Das Obergeschoss mit ca. 66 m² Wohnfläche ist aufgeteilt in zwei Kinderzimmer, Büro, Schlafzimmer und ein Badezimmer mit Badewanne, WC, zwei Waschbecken und begehbarer Dusche.

Garage

Die Fertiggarage und der Carport bieten Platz für zwei Pkw-Stellplätze. Durch den überdachten Carport gelangt man trockenen Fußes ins Haus.

Unsere Premium-Partner

Lernen Sie uns persönlich kennen

1
2
3

Datenschutzhinweis

Diese Webseite nutzt externe Komponenten, wie z.B. Karten, Videos oder Analysewerkzeuge, welche alle dazu genutzt werden können, Daten über Ihr Verhalten zu sammeln. Dabei werden von den externen Komponenten ggf. auch Cookies gesetzt. Die Einwilligung zur Nutzung der Komponenten können Sie jederzeit widerrufen. Eine Übersicht der externen Komponenten und weitere Informationen dazu erhalten Sie in unseren Datenschutzinformationen.

Notwendige Cookies werden immer geladen