#Von anfang an Wohlgefühlt

Modernes, hoch wärmegedämmtes Passivhaus im Stadtvillen Stil ohne Kellergeschoss.

„Von Anfang an haben wir uns bei der Firma Hägele wohlgefühlt. Unsere Wünsche, auch der Balkon über der überdachten Terrasse wurde berücksichtigt und zu unserer Zufriedenheit ausgeführt. Auch bei unseren Eigenleistungen, der Bau der Garage wurden wir unterstützt. Wir fühlen uns sehr wohl in unserem Haus und würden wieder mit dem Bauunternehmen Hägele bauen!

Elena und Jakob Abramow aus Alleshausen.

Grundriss
Grundriss

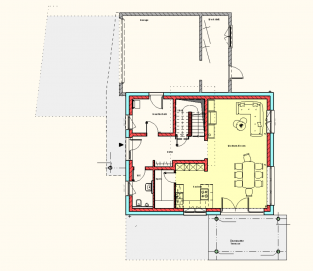
Erdgeschoss

Im Erdgeschoss mit ca. 73 m² Wohnfläche befindet sich im Eingangsbereich eine kleine Nische für die Garderobe, im südlichen Teil ein kleines Gäste-WC und im nördlichen Teil der Haustechnikraum mit einer Nutzfläche von ca. 8 m². Ein Highlight im Haustechnikraum ist der direkte Zugang zur Garage. Der lichtdurchflutete Wohn- und Essbereich mit offener Küche und separater Speis ist ebenfalls im Erdgeschoss untergebracht. Die großen Terrassentüren sorgen für einen nahtlosen Übergang auf die überdachte Terrasse und den Garten. Die elegante Treppe, die ins Obergeschoss führt, wurde perfekt genutzt. So entstand im Erdgeschoss unter der Treppe ein kleiner Abstellraum für zusätzlichen Stauraum.

Obergeschoss

Das Obergeschoss mit ca. 77 m² Wohnfläche ist aufgeteilt in zwei Kinderzimmer, ein Hauswirtschaftsraum, ein Schlafzimmer mit Balkon und ein Badezimmer mit Badewanne, WC, Waschbecken und begehbarer Dusche.

Grundriss
Grundriss

Garage

Die Doppelgarage erfolgte in Bauherreneigenleistung.

Unsere Premium-Partner

Lernen Sie uns persönlich kennen

1
2
3

Datenschutzhinweis

Diese Webseite nutzt externe Komponenten, wie z.B. Karten, Videos oder Analysewerkzeuge, welche alle dazu genutzt werden können, Daten über Ihr Verhalten zu sammeln. Dabei werden von den externen Komponenten ggf. auch Cookies gesetzt. Die Einwilligung zur Nutzung der Komponenten können Sie jederzeit widerrufen. Eine Übersicht der externen Komponenten und weitere Informationen dazu erhalten Sie in unseren Datenschutzinformationen.

Notwendige Cookies werden immer geladen