Sonntag, 14. Mai 2023 von 14:00 bis 16:00 Uhr
Im Innenausbau (kurz vor Einzug der Baufamilie)
88525 Dürmentingen, Casparweg 4
Die Zufahrt ist ausgeschildert!
Damit Sie den Besichtigungstermin nicht verpassen senden wir Ihnen gerne eine persönliche Einladung zu!

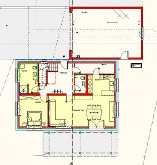
Das Erdgeschoss mit ca. 97m² Wohnfläche bietet einen großen Eingangsbereich mit Platz für eine Garderobe. Rechts neben dem Eingang liegt die Speise und ein kleines Gäste-WC. Durch die Glastüre kommt man in den Wohn- und Essbereich mit offener Küche und einem zweiten Durchgang in die Speis. Durch die große Terrassentüre hat man einen wunderschönen Ausblick auf die überdachte Terrasse und den Garten. Das Schlafzimmer und eine große Dusche mit WC liegen im westlichen Teil des Hauses. Unter der Massivtreppe ist ein kleiner Abstellraum vorhanden.
Im Obergeschoss mit ca. 82m² Wohnfläche befindet sich das große Badezimmer, ein Studio, ein Büro und das Gästezimmer. Mit ca. 11m² Nutzfläche ist auch ein Haustechnikraum im Obergeschoss.
Die Doppelgarage mit ca. 60m² bietet genug Platz für zwei PKW-Stellplätze, Fahrräder und den Müll.

Die hocheffiziente Lüftungsanlage mit Wärmerückgewinnung steht für anhaltend frische Luft im Haus, ohne dass manuell über die Fenster gelüftet werden muss. Ein vorgeschalteter Lufterdwärmetauscher sorgt mit Wärme aus dem Erdreich des Arbeitsraumes um den Keller dafür, dass die frische Außenluft im Winter vor erwärmt wird. Somit friert der Wärmetauscher des zentralen Lüftungsgerätes auch an kalten Wintertagen nicht ein. Im Sommer wiederum sorgt der Lufterdwärmetauscher dafür, dass die warme Sommerluft vorgekühlt wird. In Verbindung mit dem automatischen Sommer Bypass, welcher die Wärmerückgewinnung im Sommer abschaltet, wirkt dieser der Sommerhitze entgegen und sorgt für angenehme Sommerfrische im Haus.
Für die geringe, nur in den Kern Wintermonaten Dezember, Januar, Februar noch benötigte Heizwärme sorgt in diesem Passivhaus eine hocheffiziente Luft/Wasser Wärmepumpe, welche idealer Weise die elektrische Antriebsenergie direkt von der, auf dem Dach befindlichen Photovoltaikanlage erhält. Eine smarte Steuerung sorgt dafür, dass der erzeugte Strom zunächst im Haus verbraucht wird. Der Batteriespeicher puffert zusätzliche, elektrische Energie für einen Tagesbedarf. Dieses „Hauskraftwerk“ vom führenden deutschen Hersteller E3DC, kann jederzeit erweitert und um eine PKW-Ladestation in der Garage ergänzt werden.
Das gesamte Haustechnik Konzept wird vom BAFA mit einem direkten Zuschuss gefördert. In Verbindung mit einem zinsgünstigen Darlehen von der KfW und dem damit verbundenen erhöhten Tilgungszuschuss kommen Maria und Helmut Stuhler als Bauherren in den Genuss staatlicher Förderungen. Somit amortisieren sich die Mehrkosten für dieses Passivhaus samt zusätzlichem Kapitaldienst für die höheren Baukosten in weniger als 10 Jahre.