Ein modernes, hoch wärmegedämmtes Passivhaus im klassischen Stil mit Hauseingangsüberdachung, großzügiger Terrassenüberdachung für die Gartenartenlounge und dem „Plus“ einer Photovoltaikanlage zur Eigenstromnutzung. Mit einem Passivhaus Plus brauchen Sie keine Angst vor Energiepreissteigerungen haben, es steht für sehr niedrige Verbrauchskosten bei hohem Wohnkomfort. Sie wollen wissen wie das funktioniert und was das kostet, dann habe wir hier etwas für Sie: Das ist ein Passivhaus! oder einfach Unterlagen anfordern: Hauskatalog anfordern
Sonntag, 07. September 2025 von 14:00 bis 16:00 Uhr
Im Innenausbau (kurz vor Einzug der Baufamilie)
88400 Stafflangen, Rüblandweg 19
Die Zufahrt ist über die Buchauer Straße /
Trattengasse ausgeschildert!
Damit Sie den Besichtigungstermin nicht verpassen, senden wir Ihnen gerne eine persönliche Einladung zu!
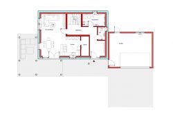
Im Erdgeschoss befinden sich auf etwa 66 m² eine große Diele, die Platz für die Garderobe bietet, direkt am Eingang. Außerdem gibt es ein kleines WC sowie den Haustechnikraum mit rund 8 m² Nutzfläche. Das Highlight ist der lichtdurchflutete Wohn- und Essbereich mit offener Küche und separater Speis, der viel Raum und Helligkeit bietet. Die großen Terrassentüren im Essbereich ermöglichen einen direkten Zugang zur überdachten Terrasse, was perfekt für gemütliche Stunden im Freien ist.
Durch die ans Haus angebaute Garage bietet die überstehende Garagendecke den Komfort trockenen Fußes zum Hauseingang zu gelangen. Mit ca. 42 m² Nutzfläche ist genug Platz für PKW, Fahrräder und den Müll.


Durch die Stahl-Holztreppe gelangt man in das Obergeschoss mit rund 70 m² Wohnfläche. Hier befindet sich die Schlafoase, zwei Kinderzimmer, ein Büro und das Badezimmer mit einem Waschbecken, Badewanne, WC und einer begehbaren Dusche.
Die hocheffiziente Lüftungsanlage mit Wärmerückgewinnung steht für anhaltend frische Luft im Haus ohne, dass manuell über die Fenster gelüftet werden muss. Ein vorgeschalteter Soleerdwärmetauscher sorgt mit Wärme aus dem Erdreich dafür, dass die frische Außenluft im Winter vorerwärmt wird. Somit friert der Wärmetauscher des zentralen Lüftungsgerätes auch an kalten Wintertagen nicht ein. Im Sommer wiederum sorgt der Soleerdwärmetauscher dafür, dass die Warme Sommerluft vorgekühlt wird. In Verbindung mit dem automatischen Sommer Bypass, welcher die Wärmerückgewinnung im Sommer abschaltet, wirkt dieser der Sommerhitze entgegen und sorgt für angenehme Sommerfrische im Haus.
Für die geringe, nur in den Kernwintermonaten Dezember, Januar, Februar noch benötigte Heizwärme sorgt in diesem Passivhaus eine hocheffiziente Erdwärmepumpe. Diese entzieht im Garten, über einen dort verlegten Grabenkollektor der Erde nahezu endlos zur Verfügung stehende Wärme, um das Brauchwarmwasser bereit zu stellen, und den Restheizwärmebedarf in den Wintermonaten zu decken.
Das gesamte Nachhaltigkeitskonzept wird mit zinsgünstigen Darlehen von der KfWgefördert. So kommen Sie als künftige Bauherren in den Genuss staatlicher Förderungen. Die Mehrkosten bei der Investition für dieses Passivhaus samt zusätzlichem Kapitaldienst amortisieren sich in weniger als 10 Jahren.