#Hervorragende Zusammenarbeit!

Modernes, hoch wärmegedämmtes Passivhaus im klassischen Stil mit Einliegerwohnung im Kellergeschoss in Hanglage.

In Stichworten gesagt: „Die Zusammenarbeit lief hervorragend, wir fühlten uns von Anfang an gut aufgehoben. Unsere Wünsche und Vorstellungen wurden zu unserer vollsten Zufriedenheit umgesetzt. Die Planung war hervorragend und die Arbeit ist sehr sorgfältig durchgeführt worden!“

Anna und Daniel aus Ahlen.

Grundriss
Grundriss

Erdgeschoss

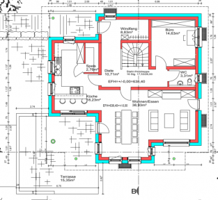
Im Erdgeschoss mit ca. 97 m² Wohnfläche befindet sich ein Windfang mit Garderobe. Durch die Diele gelangt man in die offene Küche mit separater Speis. Gleich daneben ist der Wohn- und Essbereich, der ebenfalls einen direkten Zugang zur Diele ermöglicht. Im Osten ist das WC und das Büro untergebracht. Die Terrasse, die sich auf dem Dach der Garage befindet, ist ein toller Blickfang.

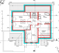
Dachgeschoss

Durch die Stahl-Holztreppe kommt man in das Dachgeschoss mit rund 75 m² Wohnfläche. Im Dachgeschoss befinden sich zwei Kinderzimmer, ein Badezimmer mit zwei Waschbecken, Dusche, WC und Badewanne. Ein Schlafzimmer mit begehbarem Ankleidezimmer und direktem Zugang zum Badezimmer sind ebenfalls im Dachgeschoss untergebracht.

Grundriss
Grundriss
Grundriss
Grundriss

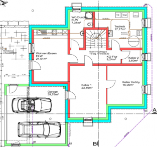
Kellergeschoss

Im Kellergeschoss ist eine Einliegerwohnung mit ca. 38 m² Wohnfläche und separatem Eingang untergebracht. Die Einliegerwohnung ist aufgeteilt in Wohnen/Essen und einem WC mit Dusche. Außerdem befinden sich im Kellergeschoss mit ca. 56 m² Nutzfläche ein Haustechnikraum, zwei Kellerräume und ein Keller/Hobbyraum. Durch den Kellerraum im südlichen linken Teil hat man direkten Zugang zur Garage.

Garage

Die Doppelgarage mit rund 40 m² Nutzfläche bietet genug Platz für zwei Pkw-Stellplätze, Fahrräder und den Müll.

Unsere Premium-Partner

Lernen Sie uns persönlich kennen

1
2
3

Datenschutzhinweis

Diese Webseite nutzt externe Komponenten, wie z.B. Karten, Videos oder Analysewerkzeuge, welche alle dazu genutzt werden können, Daten über Ihr Verhalten zu sammeln. Dabei werden von den externen Komponenten ggf. auch Cookies gesetzt. Die Einwilligung zur Nutzung der Komponenten können Sie jederzeit widerrufen. Eine Übersicht der externen Komponenten und weitere Informationen dazu erhalten Sie in unseren Datenschutzinformationen.

Notwendige Cookies werden immer geladen