#Freude jeden Tag über das Haus

Modernes Effizienzhaus im klassischen Stil mit Kellergeschoss.

In Stichworten gesagt: „Wir freuen uns jeden Tag an unserem Haus. Der Zeit- und Kostenplan waren professionell und wurden eingehalten. Die Bauleitung hat eine hohe Expertise, ist sehr freundlich mit uns Bauherren umgegangen. Auch nach 5 Jahren Gewährleistung wurden Risse im Putz noch repariert. Wir empfehlen das Bauunternehmen Hägele gerne weiter!“

Familie Clemens aus Warthausen.

Grundriss
Grundriss

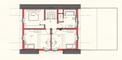
Erdgeschoss

Im Erdgeschoss mit rund 69 m² Wohnfläche befindet sich am Eingangsbereich eine Garderobe, gleich daneben ein kleines WC mit Dusche. Auf der gegenüberliegenden Seite liegt das Büro. Im Süden befindet sich der Wohn- und Essbereich mit offener Küche und separater Speis.

Dachgeschoss

Durch die elegante Stahl-Holztreppe kommt man in das Dachgeschoss mit ca. 63 m² Wohnfläche. Dort befinden sich zwei Kinderzimmer, ein Schlafzimmer und ein großes Badezimmer mit Badewanne, WC, Waschbecken und begehbarer Dusche.

Grundriss
Grundriss

Kellergeschoss

Das Kellergeschoss bietet einen großen Hobbyraum mit ca. 42 m² Wohnfläche. Außerdem befindet sich hier noch ein Haustechnik- und Kellerraum mit ca. 25 m² Nutzfläche.

Garage

Die Garage mit ca. 27 m² Nutzfläche bietet genug Platz für einen PKW. Durch die praktische Eingangsüberdachung zwischen Haus und Garage gelangt man trockenen Fußes ins Haus.

Unsere Premium-Partner

Lernen Sie uns persönlich kennen

1
2
3

Datenschutzhinweis

Diese Webseite nutzt externe Komponenten, wie z.B. Karten, Videos oder Analysewerkzeuge, welche alle dazu genutzt werden können, Daten über Ihr Verhalten zu sammeln. Dabei werden von den externen Komponenten ggf. auch Cookies gesetzt. Die Einwilligung zur Nutzung der Komponenten können Sie jederzeit widerrufen. Eine Übersicht der externen Komponenten und weitere Informationen dazu erhalten Sie in unseren Datenschutzinformationen.

Notwendige Cookies werden immer geladen